
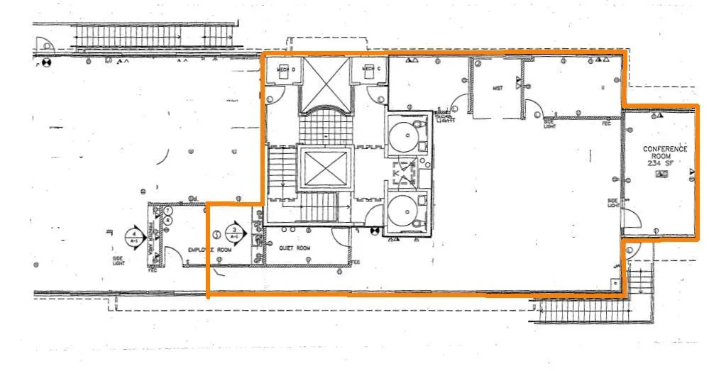
Large office unit available for rent. This unit measures 2,673sqft, with 788sqft common area and a net of 1,885sqft.
This unit features a large common area and two private office rooms with sweeping views of Los Osos Valley, Hollister Peak, and Morro Rock. There is a second entrance to the front corner office, and separate restrooms. The 234sqft conference room is bright and has enviable views. Please see the attached floorplan and photos.
It is in a beautiful building at the intersection of Los Osos Valley Road and South Bay Blvd. The complex has ample parking, nice landscaping, and is in a great location.
Included is access to a communal lobby, conference room, a large kitchen, and bathroom. The unit is on the second floor, and features an elevator and broad stairway access.
Full Service – Utilities included (Water, sewer, landscaping, bathroom cleaning and supplies).