
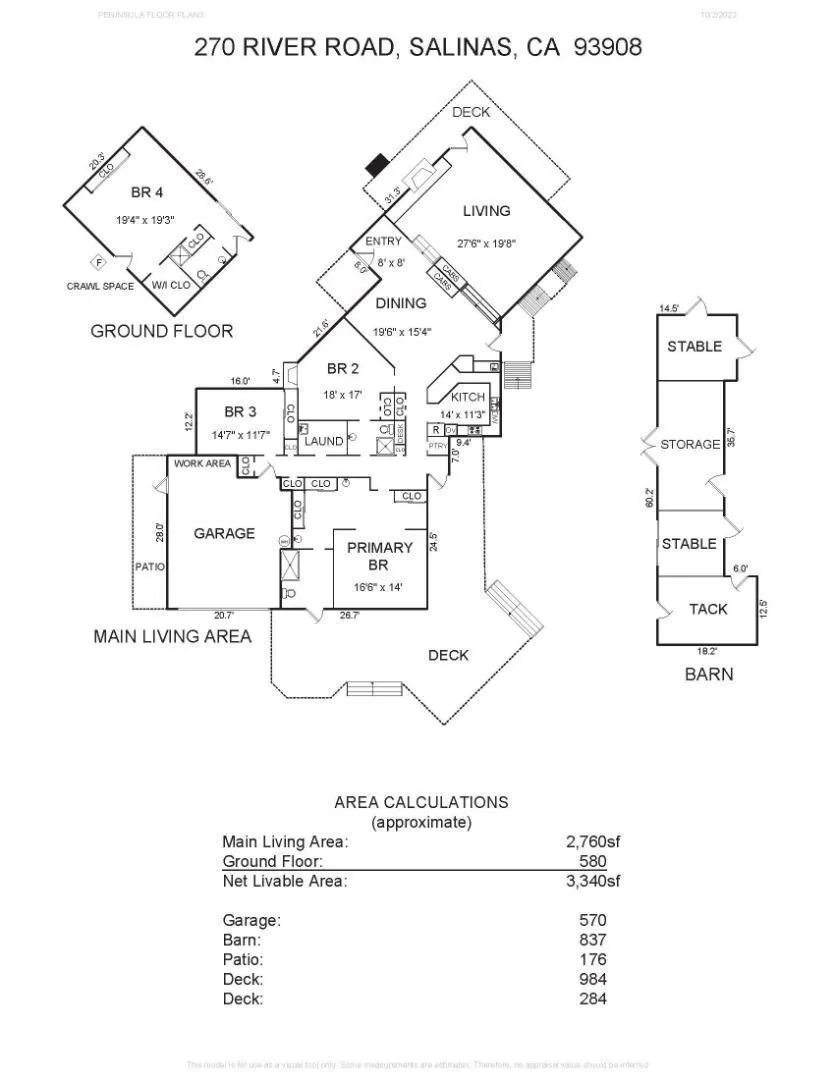
A rare find, 3 parcels ( 2 x10 A + 1 x 75 A ) gated hilltop estate features spectacular views of the entire Salinas Valley and is just waiting to thrill the next generation of ownership. Private country living at its finest, this architecturally classic 4 bed, 3 full bath home was designed & built by the original owner, a generational Salinas Valley family who enjoyed the soaring ceilings, spacious rooms, decks for entertaining & windows offering forever views. A 4th bedroom can be used as a den, complete with fireplace & another large walkout guest suite or game room for lucky visitors. The versatile land offers pastures, oak studded hills, a seasonal creek & serene canyon trails for riding and hiking, ATVs, mountain bikes and more. Complete with private well, small barn, tack room, paddocks & feed room. A recreational dream awaits your horses, dogs & 4-H projects. Pastures could be converted into crop growing. Bring your dreams on home to this forever slice of Salinas Valley magic!

ray@millmanteam.com
ray@millmanteam.com