
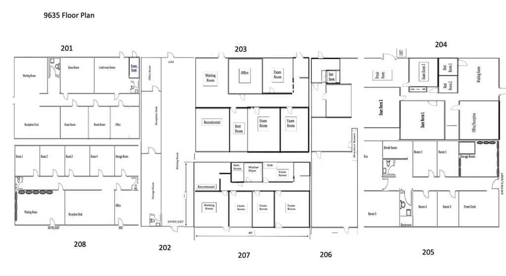
Aqua Ridge medical center, Medical / clinic building , Unit 204 approx. 1123 Sq. Ft. is available for lease. The building is comprised of 8 units, all medical related tenants occupied. Unit 204 has been update from floor to ceiling at year 2023, it’s in move-in conditions. This private special units, includes a large patient reception/waiting room, 4 examination rooms with sanitary wash basins, a break room and 2 bathrooms. Parking is abundant. The building is next to elder assisted living community , and next 9 units of medical buildings / family doctors, dentist and Otorhinolaryngology which it’s fully occupied. The complex is adjacent to Montclair urgent care. Come take a tour while it is still available.