
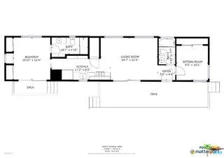
The “Not-so-tiny-home.” One of our most popular floor plans, featuring great separation of bedrooms on each side of the house. Flooded with light from numerous windows throughout, plus 9′ ceilings. The open floor plan features sliding doors out to your outdoor deck. Spacious outdoor area, will include deck, perimeter fencing, and carport. The Palm Canyon Mobile Club is Palm Springs’ latest urban renewal project. The new owners will enjoy the remodeled club house, pool, gym, hot tub, bbq areas, dance hall, plus two dog parks, one of the most unique communities in Palm Springs. Pictures of model home for this unit, not the actual home. Actual home currently under construction. Buyer to verify square footage.

ray@millmanteam.com
ray@millmanteam.com