
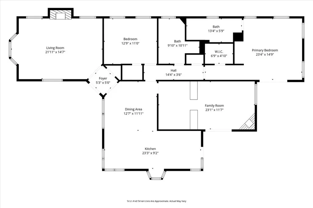
A View Heights corner lot with two guest homes / ADUs and a main residence you’ll want to call home. The main residence is a 1930s Spanish with original details. Vaulted ceilings with corbels, arched doorways, hardwood floors, and built-ins in the living room. Large south-facing windows bring in natural light. The kitchen has been remodeled with a center island, tile backsplash, stainless steel appliances, and pendant lighting. The primary bedroom opens to the backyard. A separate family room with wood paneling and a stone fireplace provides a second living space or a 3rd bedroom. Out back: two detached studio guest homes / ADUs. One features vaulted ceilings, a gas range, quartz counters, and brass hardware. The other has a breakfast bar, open shelving, and polished concrete floors. Both have full kitchens, full baths, mini-split AC, and private entrances. Rent them, house family, or both. The backyard has a lawn, raised beds with vegetables and citrus, and a pergola lounge with a shade canopy. Off-street driveway parking. Easily walk to great restaurants such as Somerville, Jon & Vinny’s, Simply Wholesome, and The Serving Spoon. Ten minutes to Culver City, LAX, and SoFi.

ray@millmanteam.com
ray@millmanteam.com