
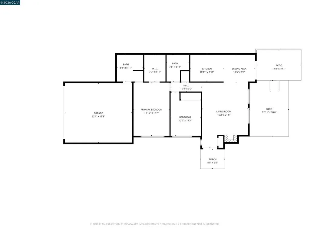
Benicia | Single-Level | 2BD/2BA | Panoramic Strait Views Set on a quiet street in an established Benicia neighborhood, this single-level 2-bedroom, 2-bath home offers panoramic views of the Carquinez Strait and the kind of everyday living that feels like a retreat. The open living and dining area flows directly to a backyard rose and lavender garden — a peaceful outdoor space with sweeping water views as the backdrop. Inside, the layout is simple and functional. The primary suite has a private bath; the second bedroom works equally well for guests or a home office. No stairs, no wasted space. Minutes to Benicia’s historic First Street, waterfront dining, and Highway 780. Don’t miss this one! Views: Carquinez

ray@millmanteam.com
ray@millmanteam.com