
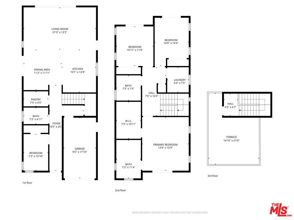
Built in 2023, this custom-designed home blends modern style with thoughtful efficiency, offering a light-filled layout in the highly sought-after Del Rey neighborhood. Designed for both comfort and functionality, the home features a smart four-bedroom floor plan, including a main-level bedroom and full bath ideal for guests or a home office. Upstairs, three additional bedrooms each enjoy their own private balcony, creating a seamless connection to the outdoors. The primary suite is a bright and tranquil retreat, complete with a spacious walk-in closet and a spa-inspired bathroom featuring a dual vanity. A generously sized laundry room is also conveniently located on the upper level. On the main floor, the open-concept design centers around a beautifully appointed kitchen with stainless steel appliances, abundant counter space, a large island, and ample storage all flowing effortlessly into the living and dining areas. Outdoor living is equally impressive, with a well-sized backyard and an expansive rooftop deck perfect for entertaining or relaxing under the California sky. Additional highlights include central heating and air conditioning, thoughtfully designed lighting, a finished garage with EV-charger readiness, and ample roof space for future solar installation. Clean, sophisticated, and perfectly tailored for Westside living, this exceptional home offers the best of modern California lifestyle.

ray@millmanteam.com
ray@millmanteam.com