
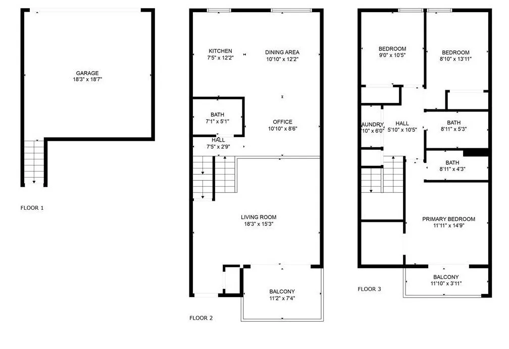
Welcome to 1711 Grismer Avenue #52, a bright and beautifully updated townhouse nestled in the prestigious Villa De Los Reyes community in Burbank. Set on a charming tree-lined street within a highly desirable school district, this tri-level residence offers an airy, light-filled layout with thoughtful upgrades throughout. Step inside to find rich wood flooring, soaring ceilings, and an elegant crystal chandelier that anchors the living space. The great room is enhanced with recessed lighting and stylish exposed railings, creating a modern yet inviting atmosphere.
The private patio just off the living room is perfect for entertaining or relaxing outdoors. The updated kitchen features stainless steel appliances, granite countertops, and custom wood cabinetry—ideal for both everyday living and hosting. Upstairs, you’ll find three well-appointed bedrooms, including a spacious ensuite primary suite with access to a sunlit balcony—your own private retreat. Additional features include:
Central air & heat, In-unit side-by-side laundry (conveniently located upstairs). Attached private 2-car garage with direct access and an automatic door
The Villa De Los Reyes community offers beautifully landscaped grounds along with resort-style amenities such as a sparkling pool, jacuzzi, gym, recreation room, and ample guest parking. Enjoy unbeatable convenience with close proximity to: Burbank Town Center, Sprouts Farmers Market, McCambridge Park, Hollywood Burbank Airport, Empire Center
With easy access to the I-5 freeway and vibrant downtown dining and cafes, this home combines comfort, style, and location. Welcome home.

ray@millmanteam.com
ray@millmanteam.com