
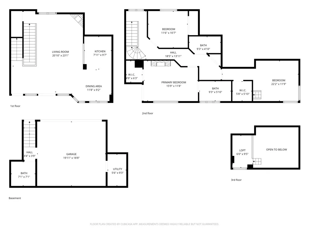
We are proud to present 730 S. Catalina ave, Redondo Beach CA, This modern style townhouse boasts beachfront views from the master bedroom and rooftop . This unit is 1594 sqft with 3 bedrooms and 2 1/2 bathrooms. The spacious floor plans consists of a 2 car garage Laundry room and a bathroom on the first floor and the living room and kitchen on the second floor. Lastly 3 spacious bedrooms and two full bathrooms are on the 3rd floor ensuring maximum privacy if you are entertaining guests. The extraordinary and spacious rooftop is also perfect for entertaining guest or watching the beautiful Redondo Beach sunsets over the ocean. Ideally located near award-winning schools, parks, shopping, dining, and seconds from the beach, this exceptional home offers a lifestyle defined by comfort, space, and coastal living. Whether relaxing at home or experiencing the vibrant South Bay surroundings, this residence captures the best of Redondo Beach. Refreshed, refined, and ready for you.

ray@millmanteam.com
ray@millmanteam.com