
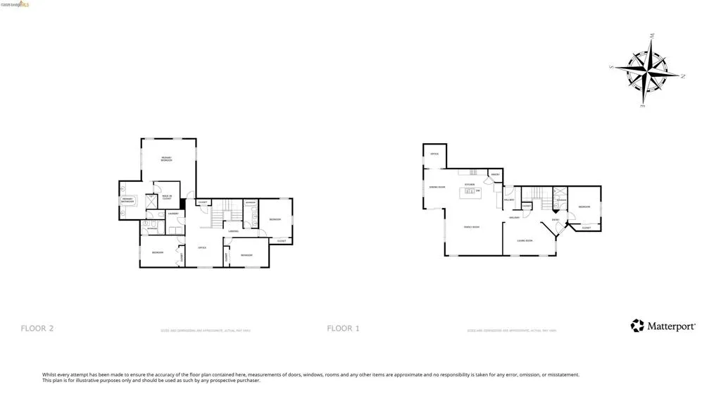
Seller motivated, offering concessions towards buyers closing costs toward rate buy down! Welcome to this beautifully maintained home in the sought-after Summer Lake community. Thoughtfully designed for comfortable family living, the home features a convenient downstairs bedroom and full bathroom, open concept kitchen into family room, a separate dining space or living room for special occasions, a dedicated office space just off the kitchen, a spacious upstairs loft, and an upstairs laundry room. The low-maintenance backyard is perfect for relaxing summer evenings, complete with a covered patio and remote-controlled sunshade, ideal for entertaining while enjoying the sunset. Maximizing living space, a finished wall with door access was added to the garage to create a gym space or additional storage. Located within walking distance to the elementary school, community clubhouse, and pool, this home offers both comfort and convenience in a vibrant neighborhood.

ray@millmanteam.com
ray@millmanteam.com