
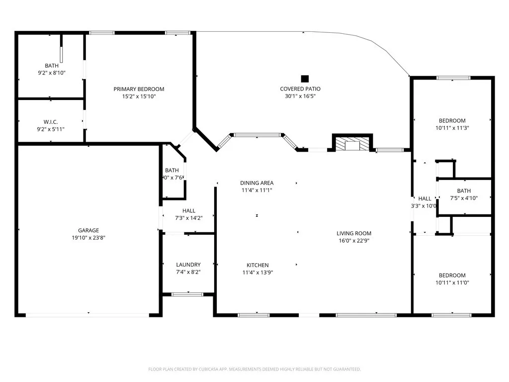
Own your own mountain retreat in the cool mountains of Morongo Valley, high on the hill will spectacular views in every direction. This newer home built in 2022 has been kept in new condition and offers a chefs kitchen, huge Mater retreat with on suite bath and light beaming in from everywhere. This estate sits on almost an acre and a half and has three levels of viewing locations in rear yard with views to take your breath away. Buy as an investment home for short term rentals as you are 15 to 20 min to everything from the the Joshua Tree national monument as well as down town Palm Springs. 10 to 15 degrees cooler. This home offers solid core doors throughout, Gas Fireplace, Sprinkler system, LED Lighting, water proof luxury laminate flooring, stainless steel appliances, Wifi set up for modem in laundry, High seer heat pump and AC system newly installed in 2025 with with smart thermostat. WOW, Clay tile lifetime roof, Low E energy efficient windows, engineered roof trusses with dormers to heaven, and many custom items through out. 200 Amp Solar ready as well as 100 amp Electric vehicle outlet. Insulated 7’8″ Auto garage door for high profile vehicles with a fully finished epoxy floor. This home has it all. Come and get it while it lasts.

ray@millmanteam.com
ray@millmanteam.com