
Welcome to this beautifully maintained and exceptionally versatile home in Lynwood! Offering far more than meets the eye, this property combines comfortable living with incredible practicality.
HOME HIGHLIGHTS:
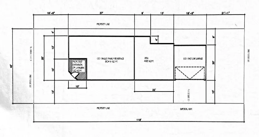
Bright & Open Living:924 sq ft main home with 2 bedrooms, 1 bathroom, a welcoming living room, and a functional kitchen.
Incredible Added Space: A fantastic 498 sq ft den with high ceilings provides endless possibilities—easily a family room, home office, gym, or 3rd bedroom.
Total Spacious Living:1,422 sq ft of total living area for flexibility and comfort.
Prime Outdoor Space: A fully fenced yard creates a private oasis and offers parking for up to 5 vehicles perfect for families with multiple cars, guests, or an RV. The fencing ensures added security and privacy.
Garage & Laundry:Attached 2-car garage includes washer & dryer hookups for ultimate convenience.
Ideal for an owner-occupier seeking space and potential, or an investor looking for a property with amazing utility. Don’t miss this unique opportunity in Lynwood!

ray@millmanteam.com
ray@millmanteam.com