
3230 Riverside Avenue | Paso Robles, CA 93446
±93,789 SF Divisible Industrial / Wine Storage Facility | SUBLEASE
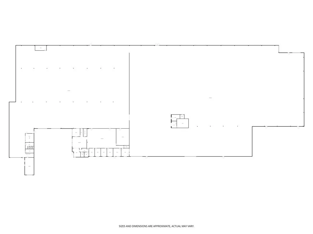
Units: 150, 170, 180, 200, 210 & 220
Asking Rate: $0.94 PSF NNN
NNN Estimate: $0.17 PSF (LOW NNNs — cost advantage)
Total Est. Rate: $1.11 PSF (Est.)
Availability: Divisible — inquire for suite breakouts
Transaction Type: SUBLEASE
Property Overview:
Rare large-span industrial sublease opportunity in Paso Robles totaling approximately ±93,789 SF across multiple combined units. The space is improved for wine storage with insulation and cooling infrastructure in place, making it a premier option for temperature-controlled warehousing, wine industry users, distribution, or specialized storage.
The property features two loading docks, high ceilings, good power, and a professional office buildout including private offices and meeting rooms. Located near the US-101 Riverside interchange, this facility provides excellent regional access and a strategic location within Paso Robles’ core industrial corridor.
Key Highlights
±93,789 SF total (Divisible — configurations available)
SUBLEASE opportunity
Wine storage improvements in place
Insulated buildout
Cooling infrastructure
Two (2) loading docks
High ceilings / clear height (excellent storage volume)
Strong power capacity
Professional office buildout + meeting rooms
Rare large-span facility in Paso with dock loading
Low NNN expense: $0.17 PSF (advantage vs. competing facilities)
Excellent access to US-101 via Riverside interchange (fast on/off-ramp access)
Ideal For
Wine storage / wine logistics & fulfillment
Cold storage / insulated distribution
Warehouse & distribution
Packaging / bottling support operations
Specialty storage / regional service users
Light manufacturing / assembly
Call to Action
Opportunities of this scale with dock loading and wine-storage improvements are rarely available in Paso Robles.