
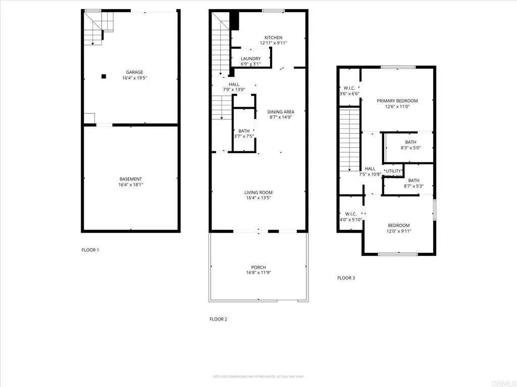
Discover resort style comfort in this beautifully updated 2 bedroom 2 bath townhome in the highly sought after Quail Ridge community of Oceanside. Boasting panoramic mountain and canyon views, this home perfectly blends peace, privacy and convenience. Step inside to find a bright, open floor plan featuring large windows and abundant natural light. Owner recently installed brand new stainless steel appliances, AC condenser unit and washer/dryer package. The primary suite includes a walk-in closet and remodeled en suite bathroom with the secondary bedroom provides flexibility for family guests or a home office. Property has a spacious 2 car garage with direct access to the living area along with tons of additional storage. Residents of Quail Ridge enjoy access to two sparkling pools, spas, a clubhouse and scenic walking trails. Perfectly located minutes from downtown Oceanside, beaches, shopping and dining. Whether you’re a first time buyer, downsized or investor this turn key Oceanside gem offers the best of coastal living at an incredible value.

ray@millmanteam.com
ray@millmanteam.com