
Welcome to Sierra Bella — a modern, gated community offering luxurious comfort, style, and sweeping views.
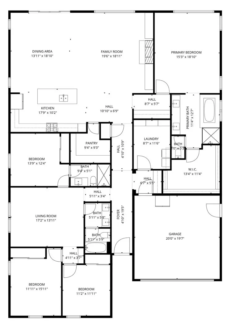
This stunning single-story home, built in 2021, features 4 spacious bedrooms plus a versatile flex room that can serve as a home office, craft space, or fifth bedroom. Designed for effortless living and entertaining, the open-concept floor plan showcases luxury vinyl plank flooring throughout, surround sound in the family room and tasteful modern updates.
The chef’s kitchen is a true centerpiece — complete with a large walk-in pantry, contemporary cabinetry, top-of-the-line appliances, and generous counter space — perfect for both everyday living and hosting guests. Energy efficiency abounds with owned solar panels and an EV charging system in the garage, while the low-maintenance backyard offers artificial turf, a beautiful covered patio, and unobstructed panoramic views — an entertainer’s dream.
Located within the gates of Sierra Bella, this home combines the best of modern design, energy efficiency, and easy living — move-in ready and waiting for you to call it home.

ray@millmanteam.com
ray@millmanteam.com