
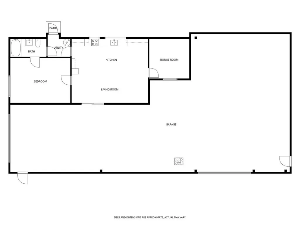
Welcome to this versatile barndominium-style property set on 10 flat, fully fenced acres within walking distance to town in Shandon. The centerpiece is a 3,000± sq. ft. enclosed agricultural building featuring two roll-up doors, allowing for indoor RV parking with full water and septic hookups. Inside, you’ll find a beautiful 700+- sq. ft. apartment complete with a full kitchen, living room, bedroom, full bathroom, bonus room, mudroom and washer/dryer hookups. Perfect for comfortable living while you build your dream home, host guests, or enjoy as a private retreat. The property is well-equipped with two wells, one delivering approximately 14 GPM into a 5,000-gallon storage tank with booster pump, plus a second well located on the opposite side of the property – ideal if the next owner chooses to subdivide or use as a back up. Whether you envision agriculture, equestrian use, equipment storage, or a future home build, this property offers incredible flexibility. Conveniently located just steps from Shandon schools, park, market, and only a 24-minute drive to downtown Paso Robles. Special lending options available!

ray@millmanteam.com
ray@millmanteam.com