
This home may qualify for Lease to Own. Call for details.
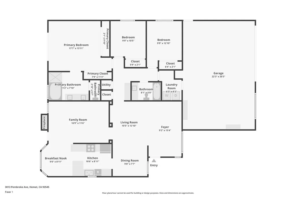
Welcome to this move-in ready 3 bedroom, 2 bathroom home located in a quiet neighborhood with no HOA and low taxes. This property features an open floor plan with vaulted ceilings, laminate wood flooring, a formal living room, family room with fireplace, and a bright galley-style kitchen with breakfast nook and dining area.
The primary suite offers direct access to the backyard, while the additional bedrooms provide space for family, guests, or a home office. Indoor laundry room with gas dryer hookup included.
Recent upgrades include: central A/C tune-up (2024), LED lighting, new kitchen faucet, updated fixtures, motion-activated exterior lighting, and a Ring security system (negotiable).
Enjoy a large backyard with patio, new drainage and fencing, plus room for a pool. Beautiful landscaping with rose bushes, lavender, and a fruit-bearing apple tree. Garage has built-in cabinets and workshop space.
Solar system keeps utility bills low. Seller will pay during lease. Included in rent.
Close to schools, shopping, and parks. This home is ready for immediate move-in!