
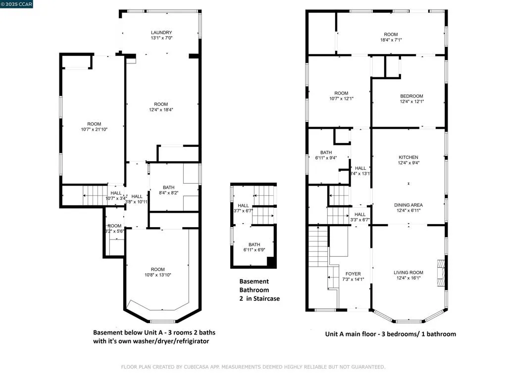
Unit A pictured only. Charming Alameda Triplex, a well-maintained and upgraded rental property in the heart of central Alameda. Offering 3115 sq.ft. of living space on a 3,500 sq.ft. lot, this versatile property includes three separately metered units. Unit A (vacant): A spacious 3-bedroom, 1-bath main-level flat with living space below adding 3 more rooms and 2 full bathrooms, ideal for extended living, guest quarters, office, or storage. Rented Unit B and C each has 1 Bedroom with 1 bath and a bonus attic room. Combined current rent for Units B & C is $2,950/month, with upside potential in leasing large Unit A. Below Unit A are 3 rooms and 2 full bathrooms and connected to Unit A with internal stairs, also separate backyard entries. Upgrades include a concrete foundation, modern plumbing, and updated electrical, dual-pane windows. Each unit has separate gas and electric meters, plus dedicated house meters for owner’s common-area use. Building has a driveway to a detached garage which is used for owner storage and houses coin-operated laundry for tenant use. Easy street parking for tenants. Ultra-convenient location just steps from Chestnut-Encinal Market, and the beloved Blue Dot Café. Minutes to downtown Park Street, Alameda Landing, parks, transit, ferry.

ray@millmanteam.com
ray@millmanteam.com