
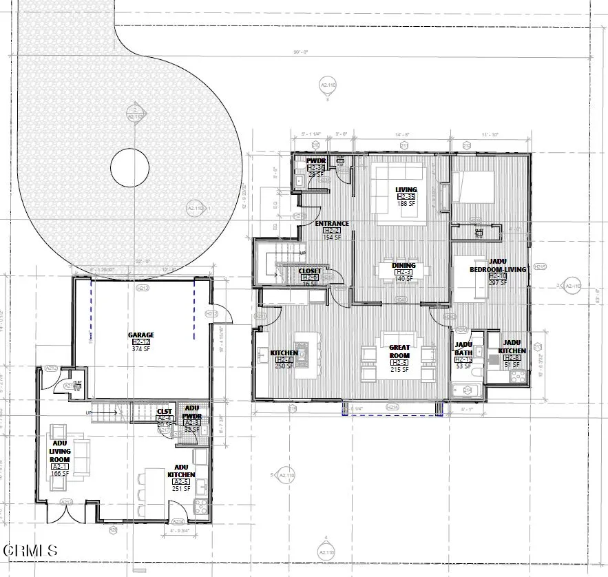
RTI ready project —- Approved plans to build. Original lot (APN 5755-016-006) was split into two lots. Both lots are for sale, listed separately, but can alternatively be purchased together. (See 3414 Mountain View Ave for front lot property with APN 5755-016-066). Permits enable you to build 1 Single Family home and 1 ADU on each lot. Each parcel is about 8000 sq. ft and the suggested living space is about 4000 sq. ft for each lot. Permits will be provided at escrow closing. Previously built structures have been removed from property.

ray@millmanteam.com
ray@millmanteam.com