
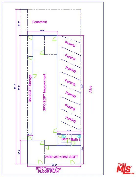
Prime opportunity to own a highly visible office/retail building on a main street in Reseda. The property features five separate entrances and is currently configured as one large office but can be divided into multiple office spaces at the Buyer’s expense. The site includes eight designated parking spaces along with ample street parking. This versatile building offers excellent visibility and exposure, ideal for retail shops or professional office use. The Seller will consider all offers. Please note, the Listing Agent is also the Seller. Recent building laws may allow development of up to 75% of the lot as a mixed-use commercial and residential project of up to two stories (Buyer to verify). Buyer is advised to conduct their own due diligence with the City of Los Angeles regarding permits and approvals, as Seller makes no guarantees.

ray@millmanteam.com
ray@millmanteam.com