
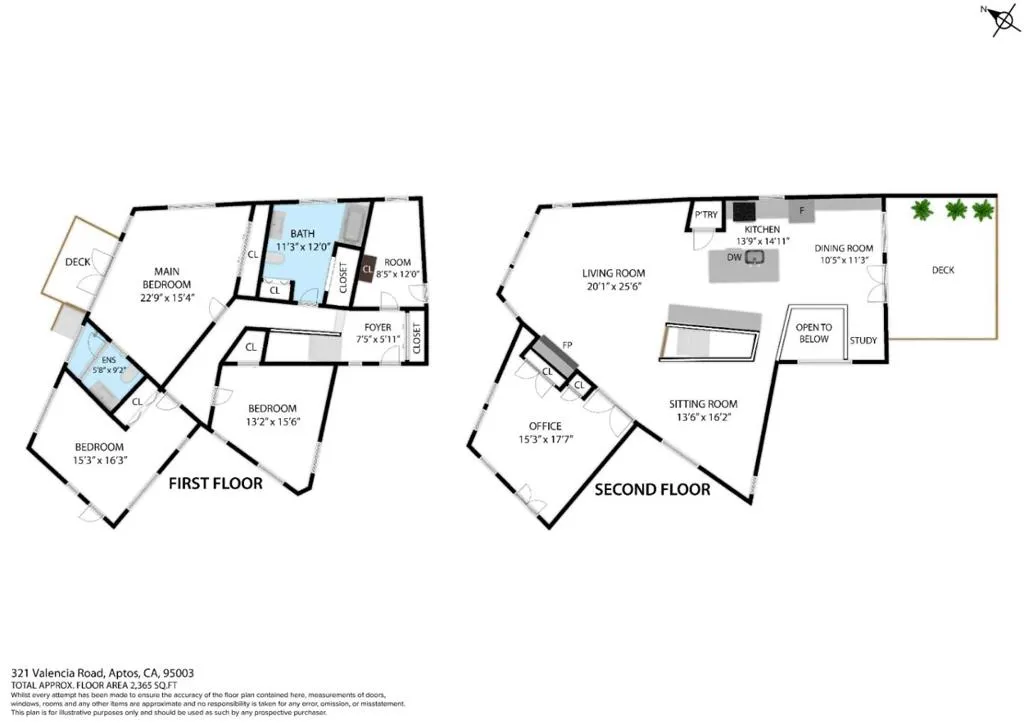
Tucked away on a private shared road with friendly neighbors less than a mile from Aptos Village, this light-filled sanctuary balances coastal style, modern upgrades, and serene redwood surroundings. The 2,412 sq ft, 4-bedroom, 2-bath reverse floorplan design maximizes natural light with vaulted ceilings, tall windows, and seamless flow between the kitchen and living spaces. French doors open to an expansive west-facing deck with an outdoor shower, perfect for entertaining or unwinding at sunset. On the main floor, three bedrooms offer peaceful privacy – two with private decks. The spacious primary suite features a private balcony retreat surrounded by trees. A bonus upstairs room with its own deck offers flexibility as an office or guest space. Artistic upgrades and smart-home features abound: Central Heat/AC, Generac 22KW back-up generator, a new roof, BidetMate heated toilet, and the following smart-equipped devices: Nest systems, motorized shades, Kasa lighting, MinkaAire fans, KitchenAid gas range, Moen touchless faucet, LiftMaster/MyQ garage opener, BHyve irrigation. Just minutes to beaches, Cabrillo College, Nisene Marks Park, shopping, dining, and top schools, this property is a rare blend of privacy, convenience, and modern comfort.

ray@millmanteam.com
ray@millmanteam.com