
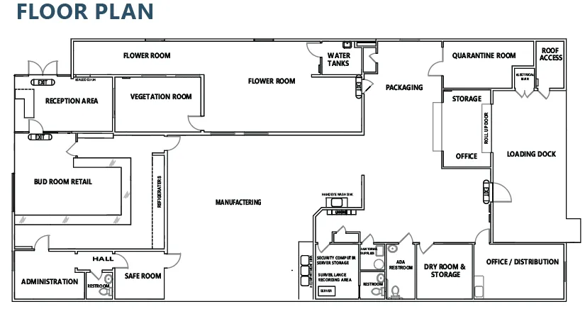
■ Free Standing 5,836 SF Cannabis Building■ Cannabis Microbusiness■ Prime Location On High-Traffic Pierson Blvd■ Easy Ingress/Egress■ Rapidly Growing Area with Strong Development Activity■ No Cannabis Manufacturing Tax in Desert Hot Springs■ Cannabis Friendly City

ray@millmanteam.com
ray@millmanteam.com