
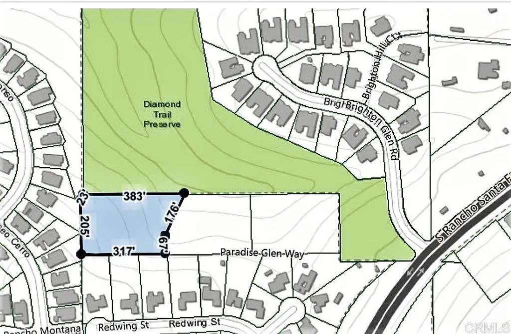
Three (3) Scenic and Serene legal lots to be sold together, 5.63 Acres total. Located adjacent to San Diego County’s Diamond Trail Preserve in San Marcos, California . The SD County Land Use designation: “RS” with 10,000 Sq. ft. minimum size lots, offer an opportunity for Multi Single Family Residences and a Park. Free of “Open Space” and “MSPC” Designations. Bring your experts who will work with the County of San Diego Development and Land Use on your Creative Unique Multi Single Family Residence project. Sewer available.

ray@millmanteam.com
ray@millmanteam.com