
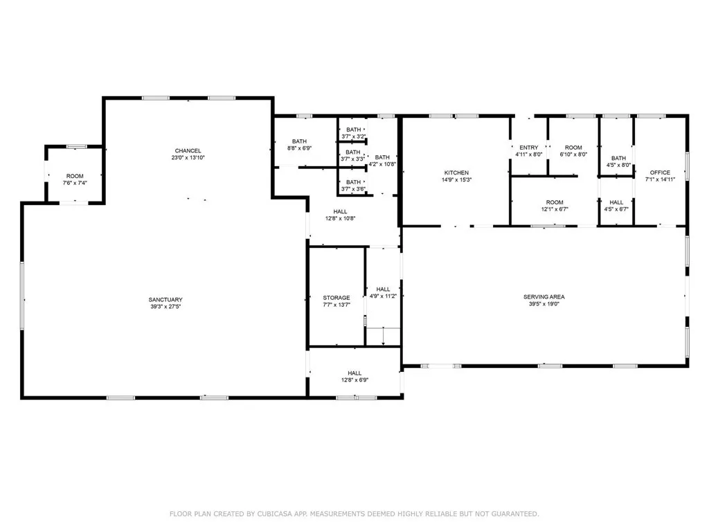
Welcome to 3425 W. 15th Street, a rare opportunity in the vibrant heart of Arlington Heights/Mid-City Los Angeles. This beautifully maintained, contemporary religious facility offers over 3,443 square feet of thoughtfully designed space, ideal for faith-based organizations, nonprofits, schools, or developers seeking a strategic location.
Set on a generous 7,001 sq ft lot, the upgraded property features a bright sanctuary with cathedral ceilings, a modern kitchen with stylish gray cabinetry and island, three updated bathrooms, and flexible-use spaces including an office, a computer/media room, a storage room, and a spacious meeting hall. Recent renovations include new flooring, fresh interior paint, and upgraded finishes throughout, making it move-in ready.
Located near the 10 and 110 freeways, this property offers easy access to Koreatown, USC, Downtown LA, and Culver City. Zoned for continued religious use or a visionary redevelopment project, the potential here is significant.
Whether you’re a congregation seeking a new location, a nonprofit expanding its community programs, or an investor looking for a prime site, this listing offers location, scale, and opportunity. Contact us today to schedule a private showing and explore what this unique property has to offer.

ray@millmanteam.com
ray@millmanteam.com