
Exceptional Investment Opportunity – Two Single Family Residences (Detached Condominiums) on One Lot!
This unique property offers two detached condominiums situated on a generous 8,940 sq ft lot.
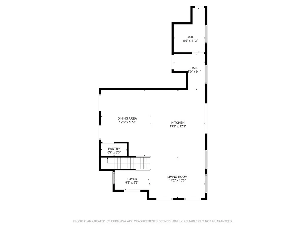
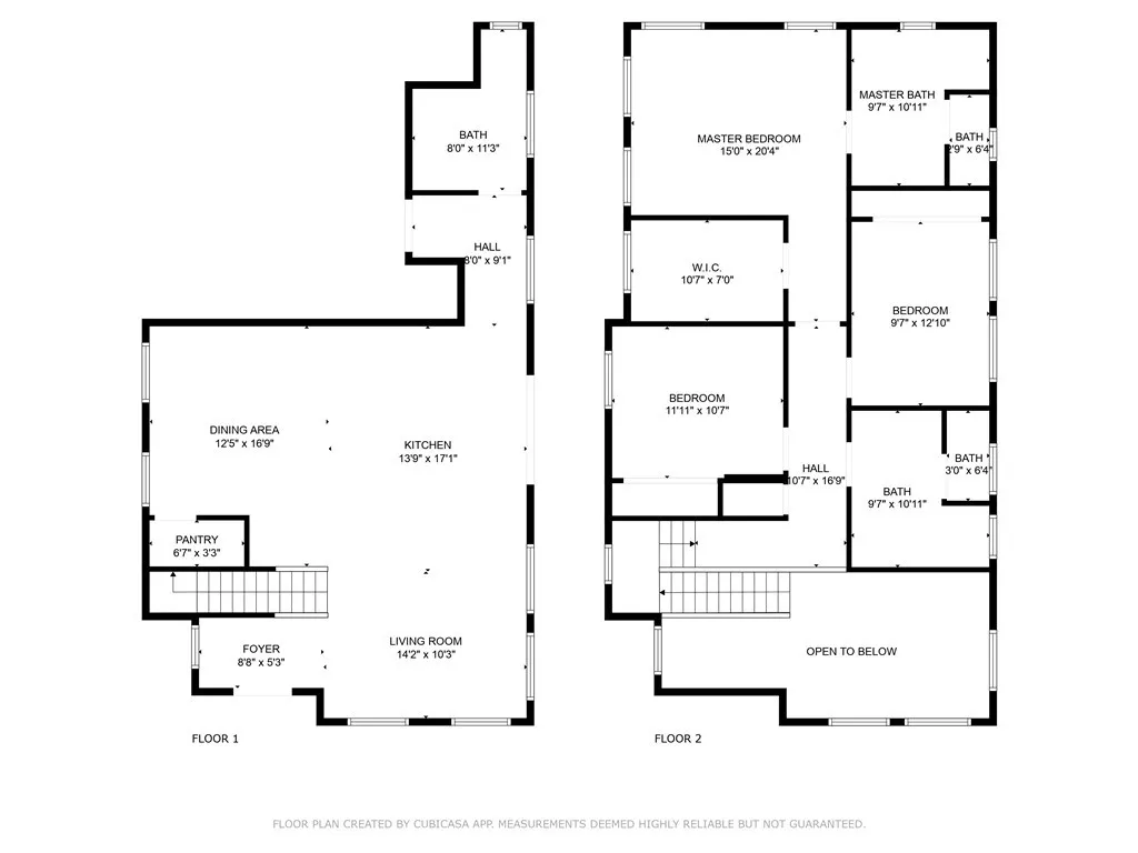
Unit A (Front) features 3 bedrooms (all upstairs) and 2.5 bathrooms. It has been occupied by a reliable long-term tenant since 2017, providing consistent rental income.
Unit B (Rear) offers 4 bedrooms (including one downstairs) and 3 bathrooms. It is currently vacant and recently remodeled, boasting fresh interior paint and wood-style vinyl flooring throughout.
Perfect for investors or owner-occupants looking to live in one unit and rent out the other. The property is conveniently located with easy access to the 60 Freeway, Ontario International Airport, Ontario Mills, and other key destinations.
Unit B is also available for lease with an option to purchase both units — see MLS# OC25015465 for details.

ray@millmanteam.com
ray@millmanteam.com