
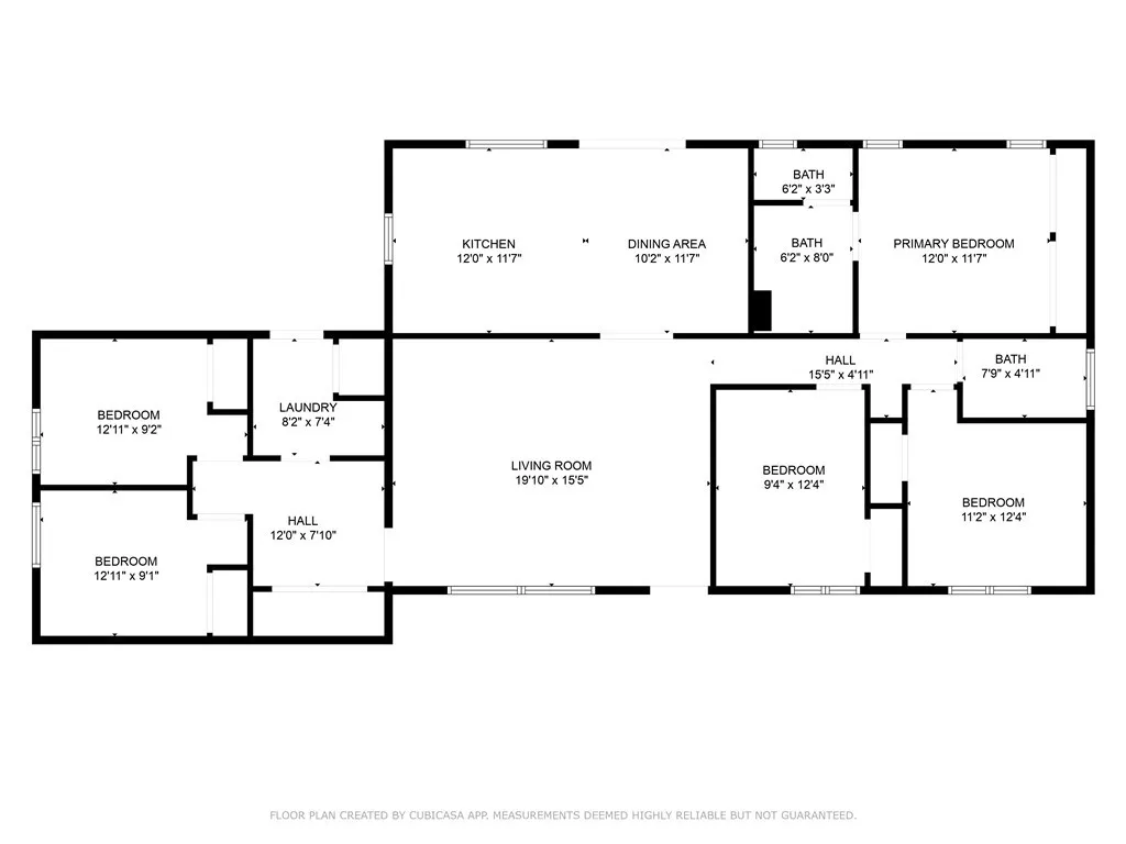
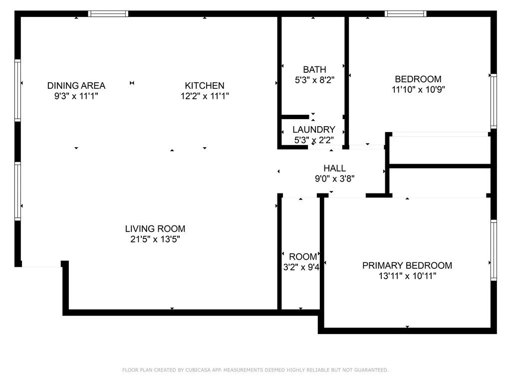
Unique Multi-Unit Property with Pool, Oversized Shop, and Income Potential! Welcome to 8963 Bold Ruler Lane in Jurupa Valley — a one-of-a-kind property offering exceptional space, flexibility, and rental income opportunities! The main home, originally built in 1975, features 5 bedrooms and 2 bathrooms, with tasteful upgrades including crown molding and plantation shutters in the living room and bedrooms. The current owner, a licensed contractor who purchased the home in 2004, converted the garage into 2 additional bedrooms and a laundry room, with plans available to transform the space into a Jr. ADU. Step outside to your private backyard retreat complete with a sparkling pool, a covered patio with built-in BBQ and oven, and plenty of space to entertain family and friends year-round. At the rear of the property sits a massive oversized shop/garage totaling approx. 1,600 sq ft, with soaring 14-ft ceilings, two 12×12 automatic garage doors, a ¼ bath, Office space, and 400 sq ft of additional second-story storage. Whether you’re a contractor, car collector, small-business owner, or need serious workspace, this structure delivers. Above the shop are two additional units: • Unit 1: 2 beds, 1 bath, approx. 1,000 sq ft, walk-in pantry, and in-unit laundry • Unit 2: 1 bed, 1 bath, approx. 600 sq ft with its own laundry area Toward the back of the lot, you’ll also find: • Unit 3: Detached 2 bed, 1 bath, approx. 867 sq ft with laundry area • RV parking area with full hookups — ideal for guests or added convenience This property is perfect for large or multigenerational families looking for extra space, privacy, and room to grow — or for anyone interested in creating multiple income streams. With its flexible layout, extensive upgrades, and impressive shop space, this Jurupa Valley gem is truly a rare opportunity!

ray@millmanteam.com
ray@millmanteam.com